Zarezerwuj wycieczkę
Szczegóły

Na sprzedaż mieszkanie na parterze w Brodaricy, zaprojektowane jako praktyczny i komfortowy dom do codziennego życia lub spędzania czasu nad morzem. To nowe mieszkanie o tym samym standardzie i koncepcji co poprzednie ogłoszenie, z naciskiem na funkcjonalny układ i przestrzeń zewnętrzną, które dodatkowo podnoszą jakość życia.

HARMONOGRAM
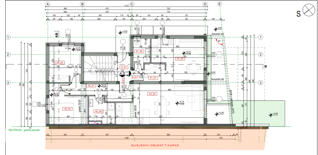
Apartament o powierzchni 79 składa się z przedpokoju, dwóch sypialni, łazienki oraz salonu połączonego z kuchnią i jadalnią w otwartej przestrzeni. Z salonu wychodzi się na taras i prywatny ogród, co czyni apartament szczególnie przyjemnym dla rodzin, właścicieli zwierząt domowych i osób lubiących spędzać czas na świeżym powietrzu.

WYPOSAŻENIE I KOMFORT
Apartament jest wyposażony w klimatyzację, a łazienka ma ogrzewanie podłogowe, co zapewnia dodatkowy komfort przez cały rok. Układ i wyposażenie są dostosowane do nowoczesnego stylu życia i niskich kosztów utrzymania.

PRZESTRZEŃ ZEWNĘTRZNA
Szczególnym atutem tej nieruchomości jest ogród o powierzchni 50 m² , idealny do relaksu, zabawy z dziećmi lub stworzenia własnego zielonego zakątka. Taras naturalnie łączy przestrzeń zewnętrzną z wnętrzem apartamentu. Do apartamentu przynależy również jedno miejsce parkingowe .

LOKALIZACJA
Brodarica to cicha i popularna miejscowość położona w bezpośrednim sąsiedztwie Szybenika, znana z zadbanych plaż, promenad i dobrego dostępu do wszystkich udogodnień niezbędnych do codziennego życia. Lokalizacja ta jest idealna zarówno do całorocznego zamieszkania, jak i na pobyt w miesiącach letnich.

Aby uzyskać więcej informacji i umówić się na obejrzenie nieruchomości, skontaktuj się z naszymi agentami. Chętnie udzielimy Ci wszelkich dodatkowych informacji i zorganizujemy wycieczkę po nieruchomości.

Agent
Ana Vlaic

Ana Vlaic

385992135066

Ana jest przedsiębiorcą z wieloletnim doświadczeniem biznesowym i wiedzą teoretyczną zdobytą na Politechnice w Szybeniku. Jej kompetencje obejmują bogate doświadczenie biznesowe, marketingowe, doskonałe umiejętności negocjacyjne oraz dobrą znajomość rynku nieruchomości. Ana jest doskonałą słuchaczką, która rozumie potrzeby i cele życiowe swoich klientów, a do swojej pracy i klientów podchodzi z cierpliwością i wiedzą. Wie, jak zaprezentować nieruchomość na rynku, wykorzystując kreatywne metody i wydobywając jej istotę i piękno. Jej umiejętności zarządzania pozwalające na identyfikację szans rynkowych, dbałość o szczegóły i rzetelność pozwalają jej klientom wybrać idealną nieruchomość.

  • Rozmiar (m²):

    79

  • Teren (m²):

    50

  • Pokoje:

    2

  • Łazienki:

    Tak

  • W budowie:

    Tak

  • Orientacja:

    E

  • Środowisko:

    Spokojny

  • Kraj:

    HR

  • Rok budowy:

    2026

  • Liczba pięter:

    3

  • Stan:

    Nowy budynek, Doskonały

  • Parking:

    Parking zewnętrzny

  • Narzędzia:

    Elektryczność, Woda, Ścieki, Internet

  • Typ podłogi:

    Płytki ceramiczne

  • Typ ogrzewania:

    Podłoga, Klimatyzacja

  • Certyfikat własności:

    Tak

  • Klucze w posiadaniu:

    Tak

  • Liczba sypialni:

    2

  • Pokój dzienny:

    Tak

  • Liczba łazienek:

    Tak

Zainteresowany tą nieruchomością?

Skontaktuj się z nami, aby umówić się na bezpłatne oglądanie nieruchomości.

Typ wycieczki:

Agent kontaktowy

Potrzebujesz profesjonalnej porady?

Nasza oferta jest aktualizowana codziennie. Wyślij nam wiadomość ze swoimi życzeniami, a nasi agenci pomogą Ci znaleźć nieruchomość spełniającą Twoje potrzeby.

    Dziękujemy!

    Twoja wiadomość została wysłana.

    Wniosek o wycieczkę - {{date}}

      Wiadomość została wysłana

      Dziękujemy za zainteresowanie!
      Skontaktujemy się z Tobą wkrótce!

      Skontaktuj się z agentem

        Wiadomość wysłana

        Dziękujemy za zainteresowanie!
        Skontaktujemy się z Tobą wkrótce!