Zarezerwuj wycieczkę
Szczegóły

Nowoczesny dom w zabudowie bliźniaczej na sprzedaż, położony w spokojnej i atrakcyjnej miejscowości Tribunj.

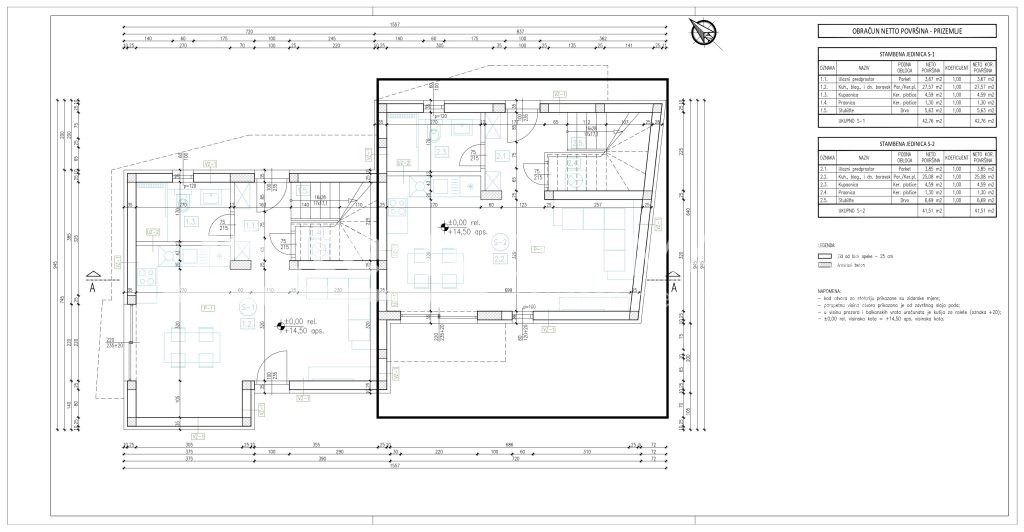
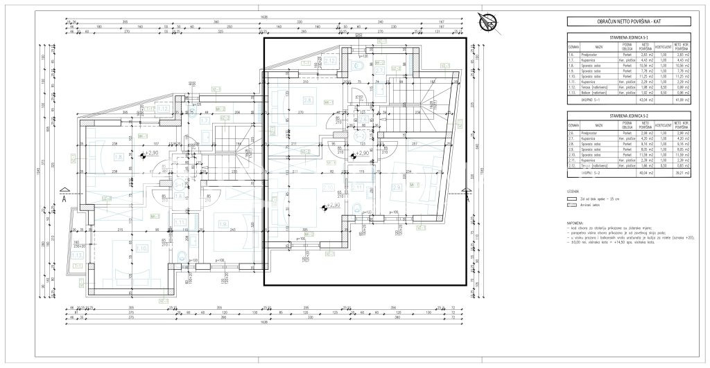
Całkowita powierzchnia użytkowa wynosi 80,72 m², rozłożona na parterze i pierwszym piętrze, z przejrzystym i funkcjonalnym układem. Parter składa się z przedpokoju prowadzącego do otwartej kuchni, jadalni i salonu, z dodatkową toaletą, pralnią i schodami. Na pierwszym piętrze znajduje się korytarz, sypialnia z łazienką, dwie kolejne sypialnie, łazienka, mały taras i balkon, co zapewnia wysoki poziom komfortu i prywatności.

Nieruchomość będzie wykończona materiałami najwyższej jakości, z ogrzewaniem podłogowym w salonie i łazienkach oraz klimatyzatorami inwerterowymi we wszystkich pomieszczeniach. Stolarka PCV, aluminiowe ściany przesuwne i moskitiery we wszystkich otworach. Dom będzie otoczony pięknym ogrodem o powierzchni 140 m², w którym znajduje się basen o powierzchni 15 m² z pompą ciepła do podgrzewania wody. Morze znajduje się zaledwie 150 metrów od domu.

Zakończenie budowy planowane jest na koniec 2026 roku.

Tribunj to urokliwe dalmatyńskie miasteczko znane z brukowanych uliczek, autentycznej śródziemnomorskiej atmosfery i spokojnego stylu życia, co czyni je idealnym miejscem zarówno na stały pobyt, jak i na wakacje.

Aby uzyskać więcej informacji i umówić się na obejrzenie nieruchomości, prosimy o kontakt z naszymi agentami.

Agent
Goran Živić

Goran Živić

+385991669105

Po ukończeniu szkoły średniej w rodzinnej Slawonii, Goran przeprowadził się do Dalmacji, a konkretnie do Vodic, gdzie rozpoczął swoją drogę w branży sprzedaży i pośrednictwa w kupnie i sprzedaży nieruchomości – drogę, która trwa już ponad 20 lat.

W ciągu tych wszystkich lat, pełnych pięknych chwil, zadowolonych klientów i relacji z kupującymi oraz sprzedającymi, które przerodziły się w przyjaźnie, praca ta stała się jego pasją i dziedziną, w której nie ma dla niego tajemnic.

Dzięki swojemu doświadczeniu i wiedzy zapewnia klientom poczucie bezpieczeństwa przy zakupie nieruchomości, profesjonalizm oraz przyjazną atmosferę, w której nigdy nie czują się niekomfortowo czy niepewnie.

Posiada wyjątkowe umiejętności negocjacyjne, potrafi budować zaufanie w rozmowie i dążyć do ostatecznego celu, jakim jest zadowolenie klienta. Umiejętności te uzupełnia wiedzą prawniczą zdobytą podczas studiów administracyjno-prawnych oraz doświadczeniem zawodowym, obejmującym znajomość przepisów i ustaw obowiązujących w Republice Chorwacji.

Prowadził projekty budowy obiektów – od uzyskania pozwolenia na budowę aż po finalny produkt i jego sprzedaż. Doskonale zna rynek nieruchomości w Chorwacji i na bieżąco śledzi wszelkie nowinki oraz zapowiedzi zmian.

  • Rozmiar (m²):

    80,72

  • Teren (m²):

    140

  • Pokoje:

    4

  • Łazienki:

    3

  • Odległość od morza (m):

    150

  • W budowie:

    Tak

  • Środowisko:

    Spokojny

  • Kraj:

    HR

  • Rok budowy:

    2026

  • Stan:

    Nowy budynek

  • Typ konstrukcji:

    Cegła, Beton, Mieszane, Beton zbrojony, Cegła blokowa

  • Parking:

    Zadaszony parking

  • Narzędzia:

    Elektryczność, Woda, Ścieki

  • Typ podłogi:

    Laminat, Płytki ceramiczne

  • Typ ogrzewania:

    Podłoga, Klimatyzacja

  • Certyfikat własności:

    Tak

  • Pozwolenie na budowę:

    Tak

  • Liczba sypialni:

    3

  • Pokój dzienny:

    Tak

  • Liczba łazienek:

    2

  • Pół łazienki:

    WC

  • Instalacje wewnętrzne:

    Telewizja satelitarna

  • Uporządkowany ogród:

    Tak

  • Typ basenu:

    Na zewnątrz

  • Wymiary basenu:

    5m x3m

  • Typ okna:

    PVC

Zainteresowany tą nieruchomością?

Skontaktuj się z nami, aby umówić się na bezpłatne oglądanie nieruchomości.

Typ wycieczki:

Agent kontaktowy

Potrzebujesz profesjonalnej porady?

Nasza oferta jest aktualizowana codziennie. Wyślij nam wiadomość ze swoimi życzeniami, a nasi agenci pomogą Ci znaleźć nieruchomość spełniającą Twoje potrzeby.

    Dziękujemy!

    Twoja wiadomość została wysłana.

    Wniosek o wycieczkę - {{date}}

      Wiadomość została wysłana

      Dziękujemy za zainteresowanie!
      Skontaktujemy się z Tobą wkrótce!

      Skontaktuj się z agentem

        Wiadomość wysłana

        Dziękujemy za zainteresowanie!
        Skontaktujemy się z Tobą wkrótce!