Rezervirajte obilazak
Detalji

U Kožinu, na svega 50 metara od mora i plaže, smještena je zgrada s četiri vrhunska stana na iznimno atraktivnoj lokaciji. Zgrada je u izgradnji s planiranim završetkom 2026. godine.

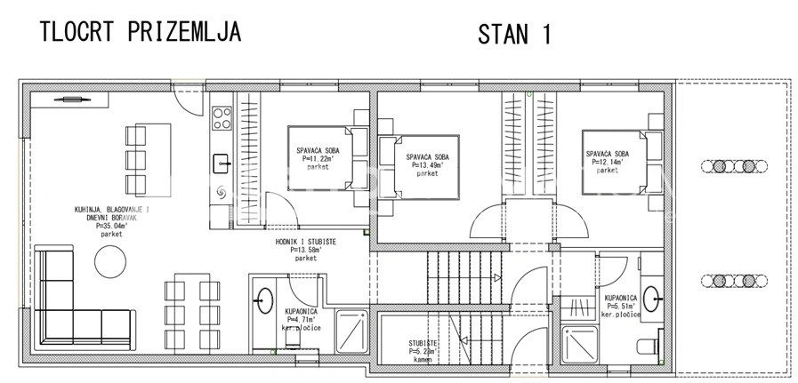
Stan u prizemlju, u južnom dijelu, sastoji se od velikog dnevnog boravka s kuhinjom i blagovaonicom, prostrane spavaće sobe i kupaonice. Unutarnjim stepenicama, poluetažno na sjevernoj strani, nalaze se dvije dodatne spavaće sobe s kupaonicom. Ukupna površina stana iznosi 104 m².

Stan je opremljen podnim grijanjem i klima uređajem, ima vlastito parkirno mjesto i terasu te pogled na more. Izvrsna lokacija, idealna za ugodan život ili bezbrižno ljetovanje.

Agent
Šime Unić

Šime Unić

+385 9175443 13

Šime je vlasnik i direktor agencije Terra Dalmatica. Nakon što je diplomirao na Ekonomskom fakultetu Sveučilišta u Zagrebu, profesionalnu karijeru u djelatnosti prometa nekretninama započeo je u svom rodnom Šibeniku.

Šime je licencirani trgovac nekretninama i brzo će prepoznati najbolju tržišnu mogućnost. Sa strpljenjem će saslušati vaše zahtjeve te će vam strateški izložiti sve informacije, kako bi donijeli pravu odluku, bilo da ste u potrazi za nekretninom, ili ju trebate prodati. Specijalizirao je prodaju investicijskih nekretnina, luksuznih kuća i stanova a njegov dobar odnos s klijentima i razumijevanje tržišta nekretnina pružit će maksimum za sve koji očekuju najvišu razinu usluge.

Zbog njegove predanost poslu i višegodišnjeg, samostalnog vođenja vlastite firme, te promišljanja o njezinim ciljevima, možemo kazati da Šime živi svoj posao i voli to što radi.

  • Veličina (m²):

    104

  • Sobe:

    3

  • Kupaonice:

    2

  • Udaljenost od mora (m):

    50

  • Pogled na more:

    Da

  • Nekretnine u izgradnji:

    Da

  • Orijentacija:

    S

  • Pogled:

    Pogled na vodu, Pogled na more

  • Okruženje:

    Mirno

  • Adresa:

    Kožino

  • Država:

    HR

  • Godina izgradnje:

    2026

  • Stanje:

    Novogradnja

  • Parking:

    Vanjski parking

  • Priključci:

    Struja, Voda, Kanalizacija

  • Vrsta grijanja:

    Podno, Klima

  • Broj spavaćih soba:

    3

  • Broj kupaonica:

    2

  • Značajke nekretnine:

    Klima, Podno grijanje, Terasa, Parking

Zainteresirani ste za ovu nekretninu?

Kontaktirajte nas kako biste dogovorili besplatan pregled nekretnine.

Vrsta obilaska:

Kontaktiraj agenta

Trebate stručni savjet?

Naša ponuda se ažurira svakodnevno. Pošaljite nam poruku sa svojim željama i naši agenti će vam pomoći pronaći nekretninu koja odgovara vašim potrebama.

    Hvala!

    Vaša poruka je poslana.

    Zahtjev za razgledavanje - {{date}}

      Poruka poslana

      Hvala na interesu!
      Javit ćemo vam se uskoro!

      Kontaktirajte agenta

        Poruka poslana

        Hvala na interesu!
        Javit ćemo vam se uskoro!